房子装修怎样看风水?怎么装修房子风水好?房子装修风水注意事项有哪些?
客户需求:
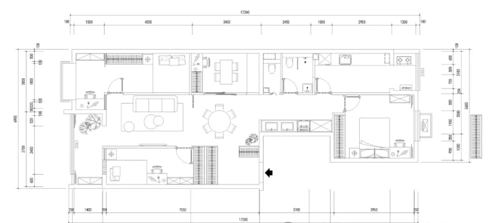
平时是一家四口居住,老人临时会住一下,两居室不够日常使用,希望有更多的房间可以使用,孩子房间需要有可以学习的空间,家里书很多,需要有大量的存储空间,能有两个马桶方便实用,风格方面喜欢新中式风格,同时希望能有温馨的感觉。
风水设计&室内设计师分析:

改四居的重点是充分利用南向的面宽,隔出三间房,当然会有房间过长的问题,采用吊顶的分隔即可解决。
入户门处留一个小明堂纳气。
主卧采取门后退的方式,即可形成一个凹门纳气,把衣柜嵌到那个槽里、房间内部也可以更方正。
餐桌采用圆形,有利于气氛的圆融,圆桌会议也是有这个好寓意,不好各聚一方。
所有的卧室门不对冲床或书桌,做好聚气。
中间的榻榻米茶室也可为日后住人做出预留空间。
风水是家居装修中非常重要的一个内容,潜藏着很多玄机。
对商品房风水来说,最好的介入时间,是从选楼盘、选房开始!因为选择大于努力!入住好的楼盘,并选对了好的房子,风水格局就成功了一大半。
对于已经选择了房子的朋友来说,最好的介入时机,是在装修前,还未装修,就有很大的改善空间!
